Studio
News
Work
Homes
Contact
Studio
News
Work
Homes
Contact
Riverside Apartments
Proposal
Riverside Layout
Garden Layout
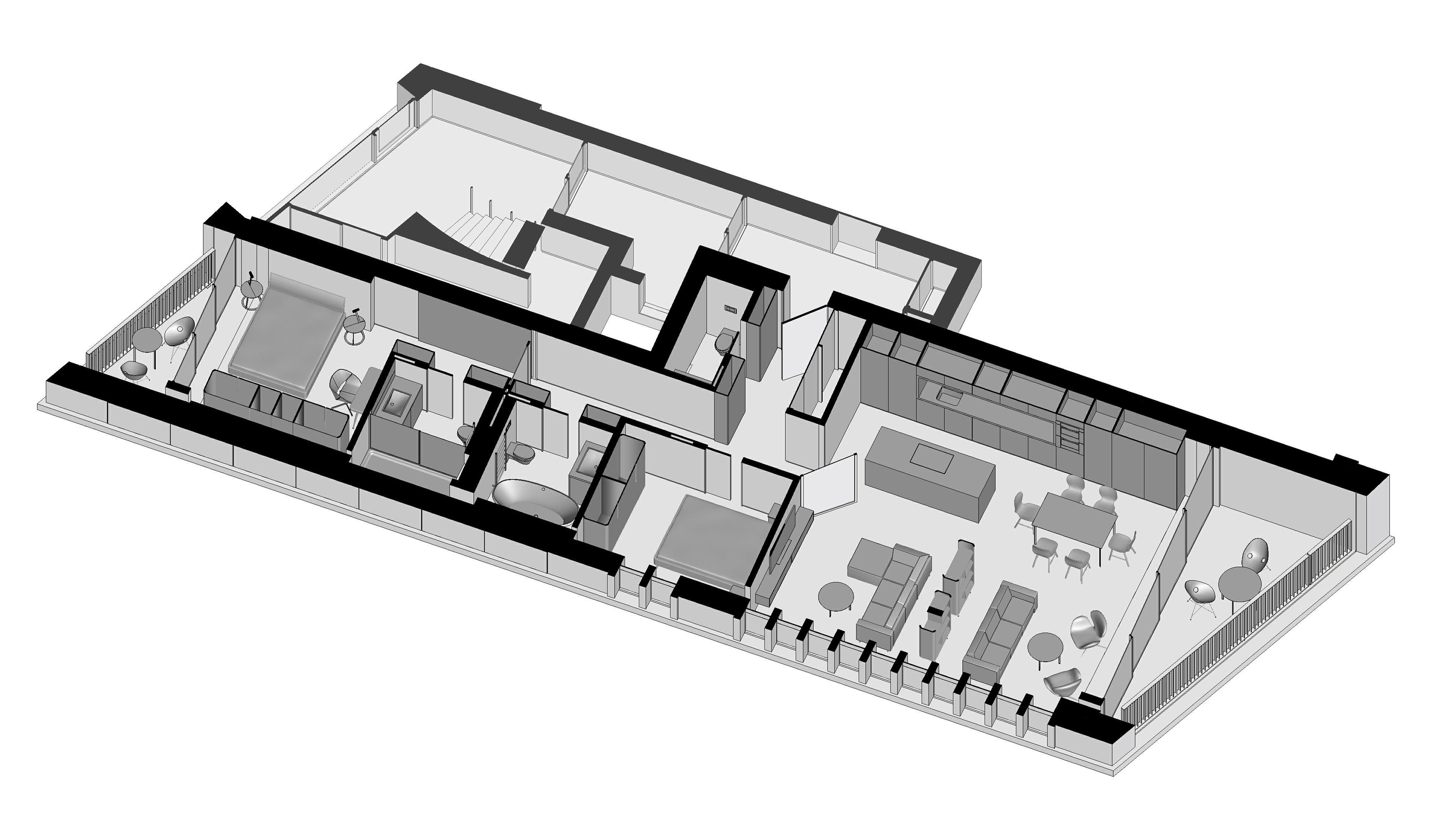
Apartment Design
Materials & Colours Study
Elevations & Sections
West Elevation
North Elevation
East Elevation
South Elevation
Riverside Section
Garden Section
You may also like
Clinical Teaching & Exam Centre
Collaborative Learning
Sport & Performing Arts
Digital Learning
Reception & Academic Office
Lecture Theatres
Reception & Gallery
Lasdun Cafe
Residential Site Renewal
Fino
↑
Back to Top