

Introduction
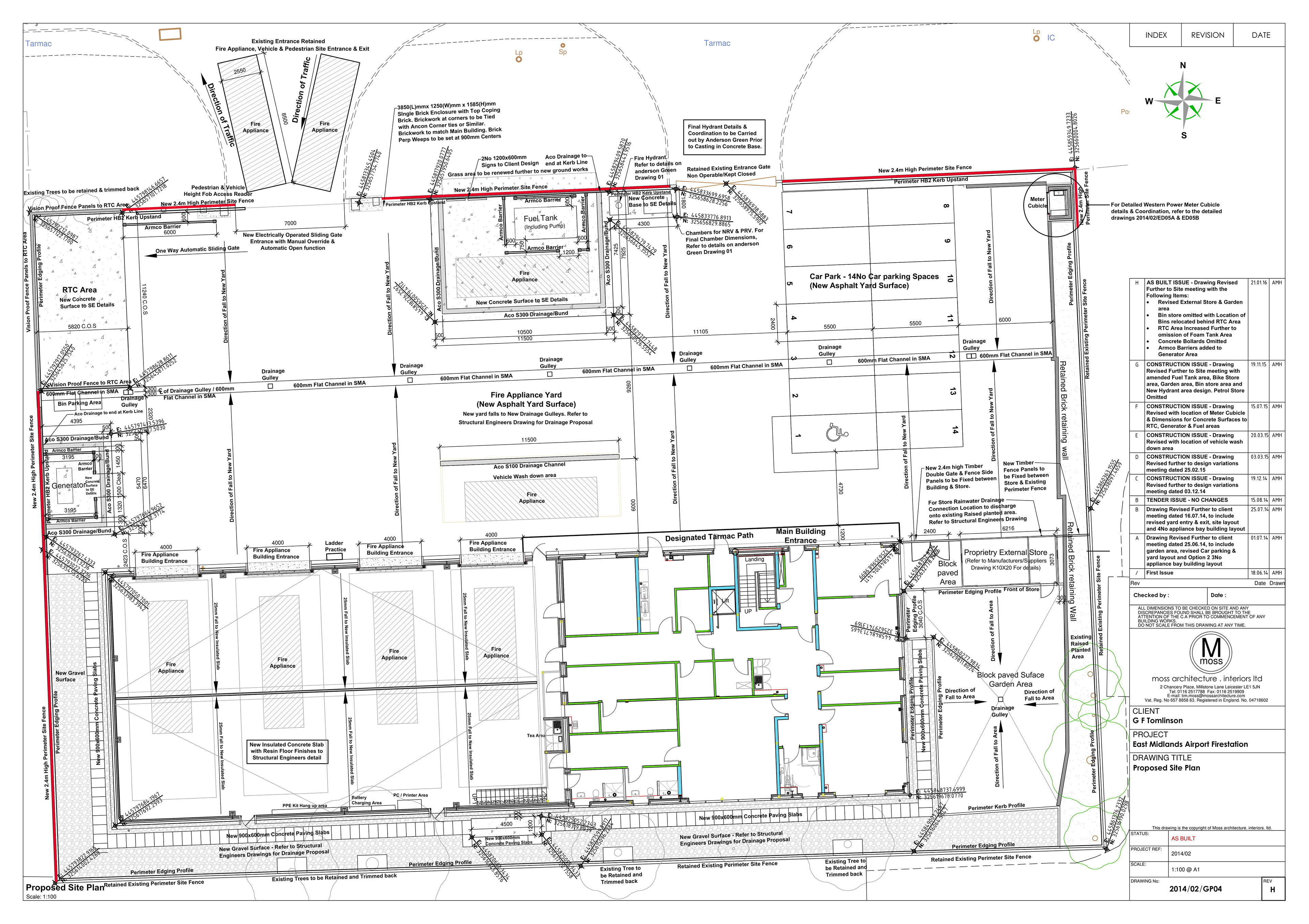
This project involved the development of an existing single storey portal frame warehouse building and external yard into the new Castle Donnington Fire Station. A design & build collaboration with G F Tomlinson Ltd contractors procured through the SCAPE framework for the East Midlands Fire Service. The Site is located on the East Midlands Airport Business Park. The project involved developing a detailed design brief direct with the fire service steering team and managing contractors to include embedding standard technical and space standards specification and quality and operational safety and security requirements.This involved developing option design solutions and testing operational team criteria to resolve interior space standards with safe operational requirements.
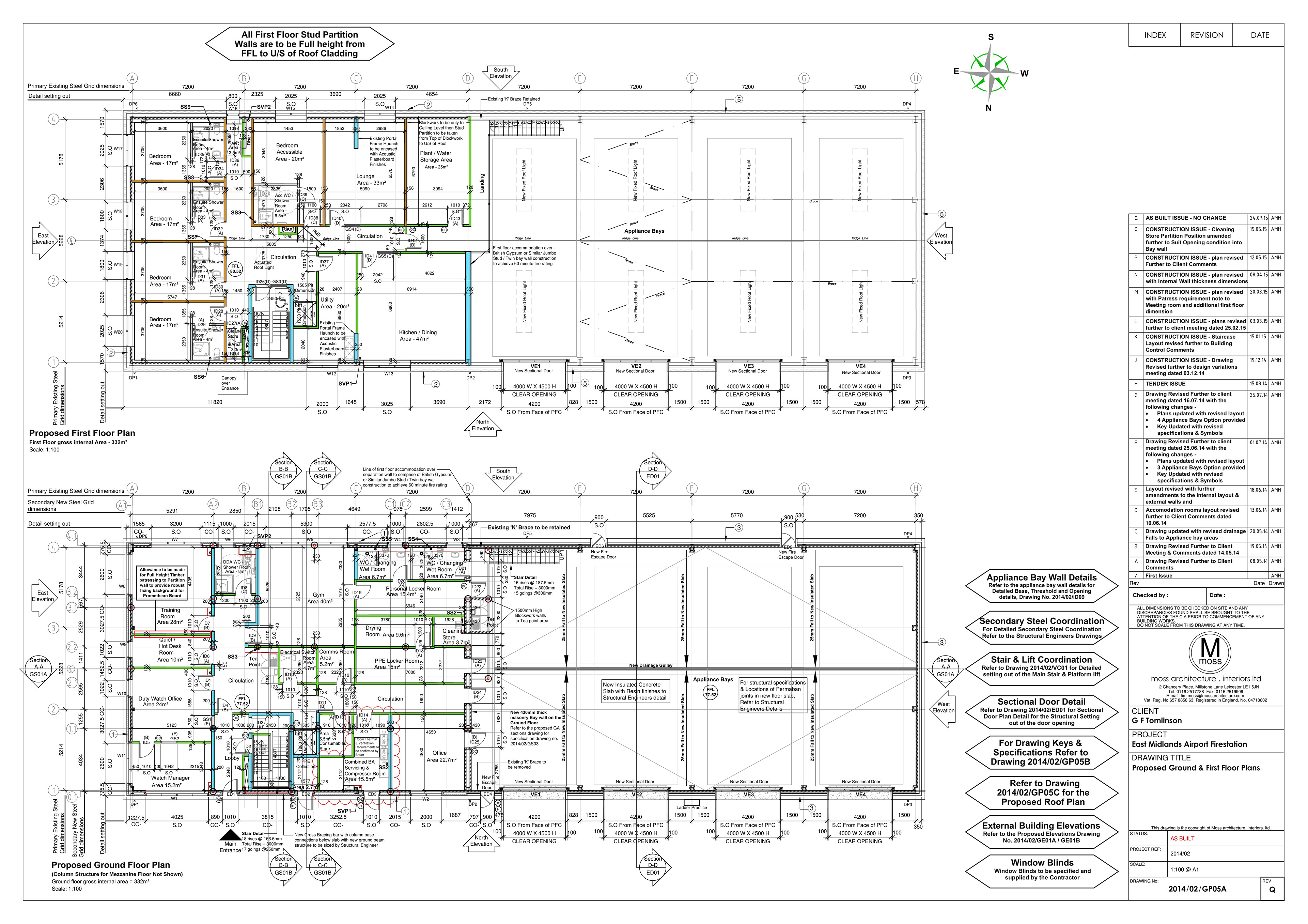
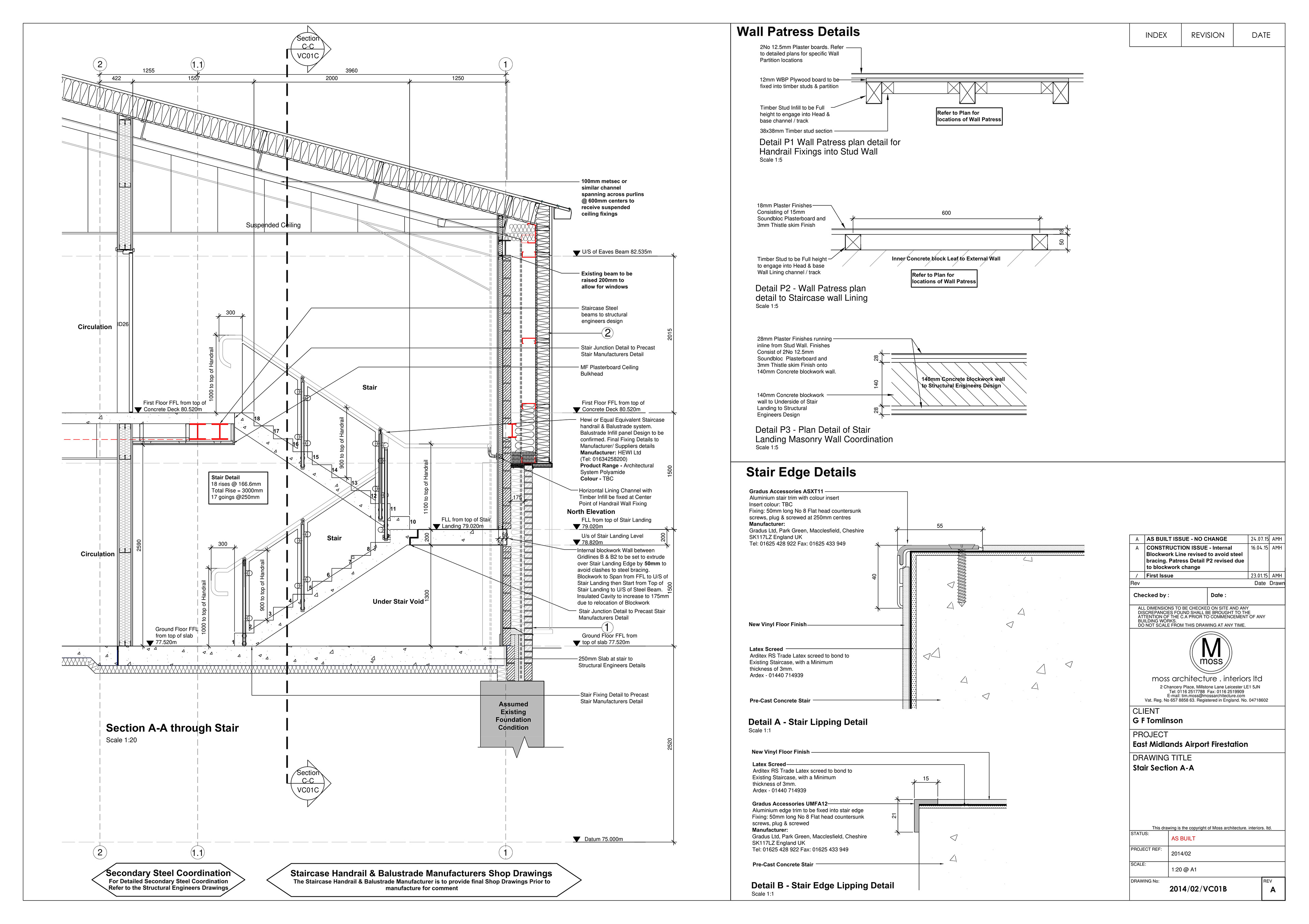
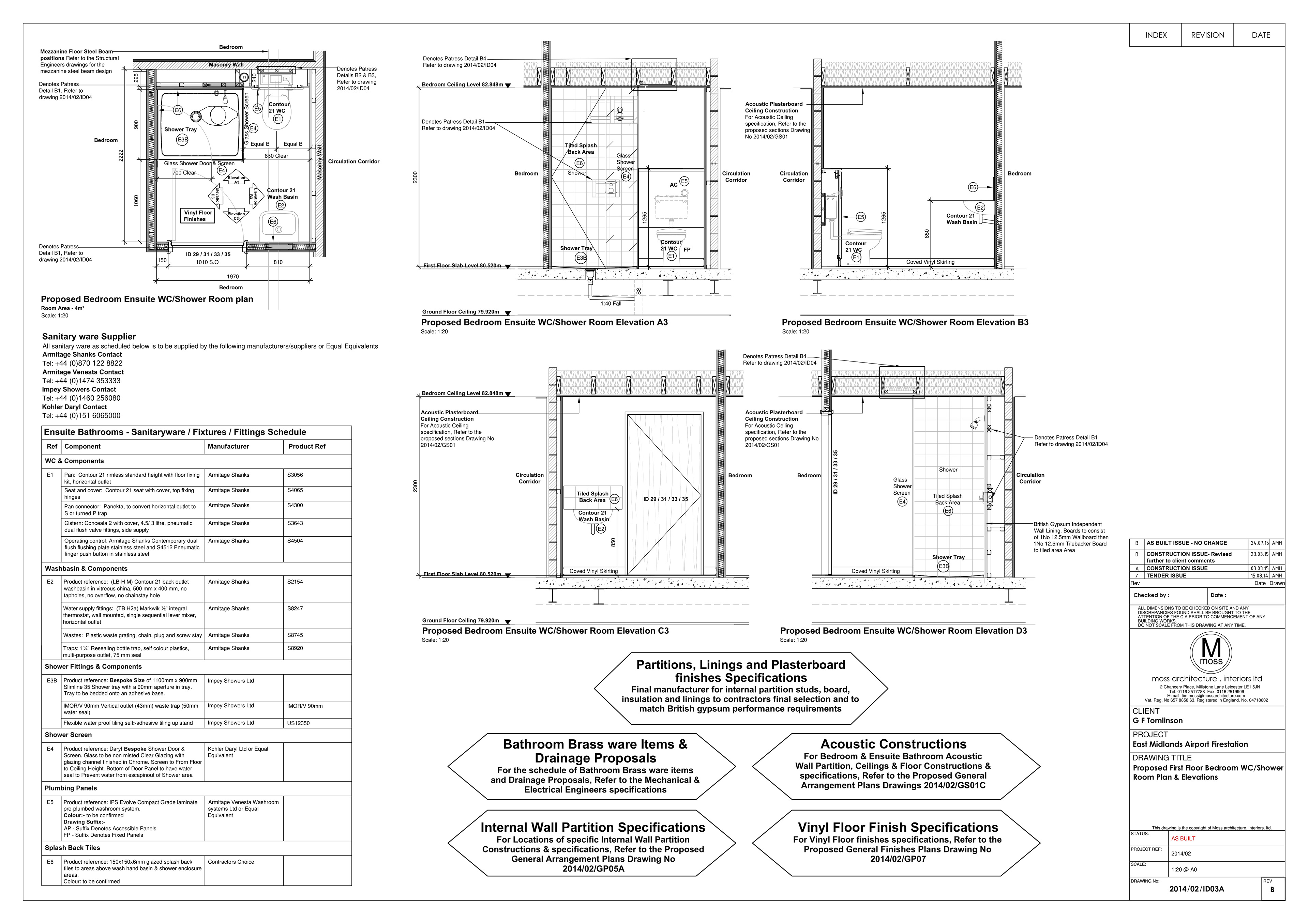
The existing building was fully demolished to include excavation of the ground floor slab retaining only the foundations and primary steel portal frame structure. A new two storey fire station layout was then planned into the existing portal structure to include a separately supported first floor sleeping and kitchen accommodation on a separately constructed mezzanine with stair and lift access. The frame was then re-clad to include new purlin and sheeting rail construction to include brick cavity wall and built up profile sheet claddings. The sleeping accommodation included acoustic isolation enhancements to the cladding design and windows due to the adjacent East Midlands Airport. A new external concrete fire appliance yard was created for vehicle cleaning and training activities with a road traffic accident training area. The MEP services were fully renewed and site supplies upgraded. Electrical Supplies and water mains were upgraded to Fire Service specification. This project exampled challenging existing preconceptions as a collaborative team to deliver a safe operational fire station within an existing building footprint, establishing new approaches to layout planning and space standards and servicing arrangements. The fire station is completed and operating successfully.
Layout



Construction














Interior


